Wohn- und Geschäftshaus mit Entwicklungspotenzial in Toplage auf Rügen zu verkaufen!

Kosten

Kaufpreis:
599.000 €
Provisionspflichtig:
Ja
Käuferprovision:
Provisionsfrei

Flächen

Wohnfläche:
665,00 m²
Gesamtfläche:
1.774,00 m²

Objektangaben

Nutzungsart:
Wohnen
Objektart:
Wohnung
Ort:
18573 Samtens
Strasse:
Plüggentiner Straße
Baujahr:
1978/1984
Heizungsart:
Zentralheizung
Befeuerung:
Gas

Energieausweis

Ausweistyp:
Bedarfsausweis
Gültig bis:
18.09.2035
Warmwasser inkl.:
Ja
Endenergiebedarf:
124.78 kWh/(m²*a)
Energieträger:
Erdgas
Effizienzklasse:
D
Baujahr:
1984
Ausstellungsdatum:
19.09.2025

Beschreibung

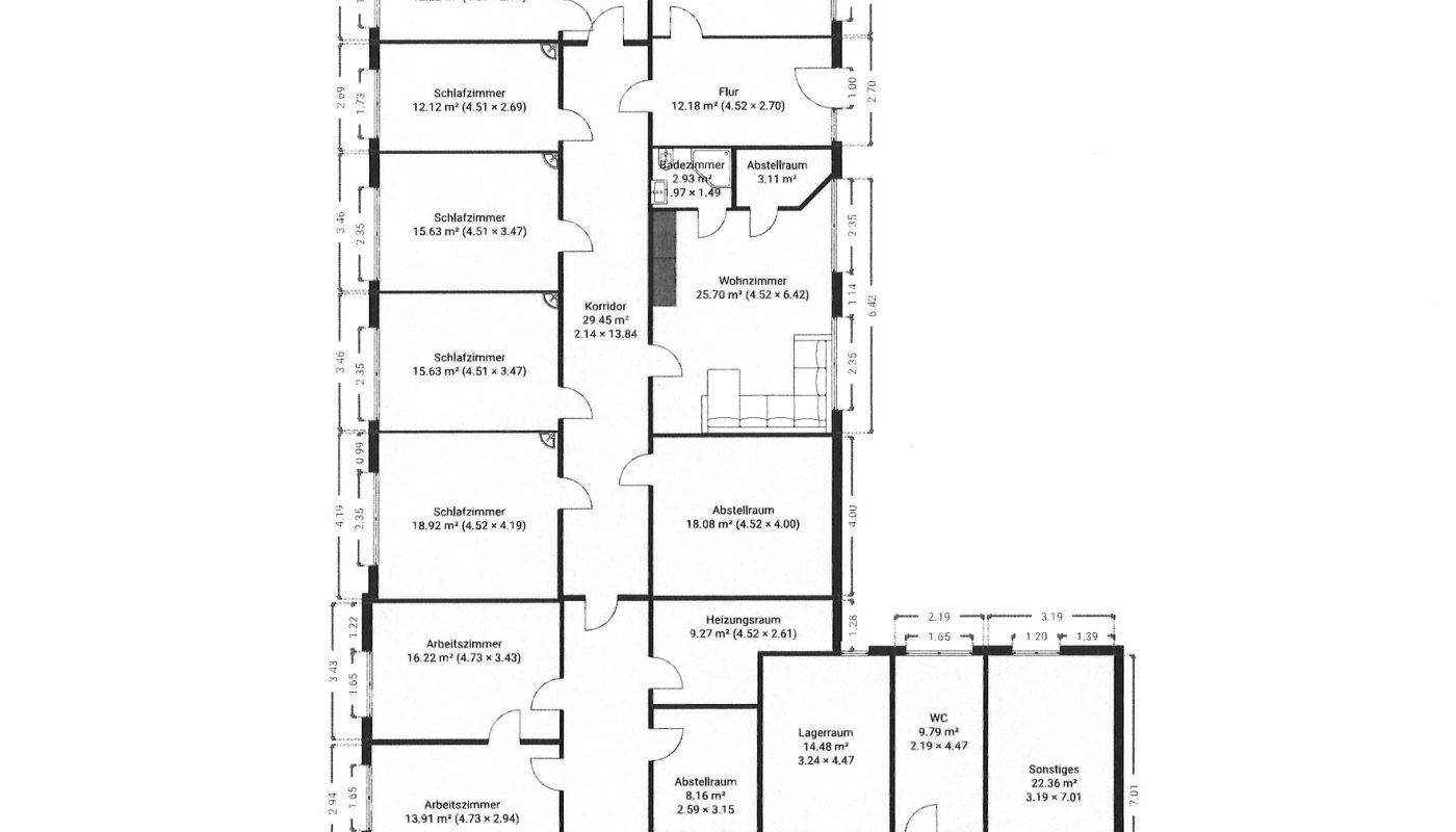
Zum Verkauf steht ein vielseitig nutzbares Wohn- und Geschäftshaus im Herzen der Gemeinde Samtens auf der beliebten Ferieninsel Rügen. Das ca. 1.774 m² große Grundstück beherbergt ein Vorderhaus (Bj. 1978) mit Sanierungsbedarf sowie ein Hinterhaus (Bj. 1984), das ursprünglich als Bürokomplex erbaut wurde. Im Laufe der Jahre wurde das hintere Gebäude umgebaut. Es entstanden weitere Ferienwohnungen, Gästezimmer sowie weiterer Wohnraum. Die gesamte Wohn- und Nutzfläche von ca. 665 m² eignet sich ideal für Investoren, Projektentwickler, Eigennutzer oder Unternehmer, die Wohn- und Gewerbenutzung kombinieren möchten.

• Immobilienart: Wohn- und Geschäftshaus (Mischgebiet)
• Grundstücksfläche: ca. 1.774 m²
• Wohn- und Nutzfläche gesamt: ca. 665 m²

• Bauweise:
- Vorderhaus: Baujahr 1978, sanierungsbedürftig
- Hinterhaus: Baujahr 1984, als Bürokomplex errichtet, teilsaniert

• Heizung: Zentralheizung über stabilen Viessmann-Kessel

• Anschlüsse:
- Strom, Wasser, Telefon etc. im Gebäude vorhanden
- Abwasserleitung am Grundstück, aktuell über Sammelgrube mit Bestandsschutz

• Bebauung: Vorder- und Hinterhaus, mit separaten Nutzungsmöglichkeiten

Ausstattung

• Vorderhaus:
- Ehemalige Wohn- und/oder Gewerberäume
- Sanierungsbedürftiger Zustand, Ausbaupotenzial vorhanden

• Hinterhaus:
- Ursprünglich als Bürokomplex gebaut und umgestaltet in Gästezimmer und Ferienwohnungen.
- Teilsaniert, nutzbar als Büro, Praxis, Wohneinheiten etc.
- Großzügige, helle Räume, flexible Raumgestaltung

• Allgemein:
- Grundstück bietet Parkmöglichkeiten und Platzreserven
- Heizungsanlage betriebsbereit
- Gemischte Nutzung möglich (Gewerbe + Wohnen)

Lage

Die Immobilie befindet sich in zentraler Lage der Gemeinde Samtens, einem infrastrukturell gut erschlossenen Ort auf Rügen, der größten Insel Deutschlands.
• Zentrale Insellage – optimal erreichbar über B96 und Bahn
• Bahnhof Samtens fußläufig erreichbar
• Einkaufsmöglichkeiten, Schule, Kita, Ärzte, Sportanlagen etc. vor Ort
• Gute Sichtbarkeit für gewerbliche Nutzung – dennoch ruhige Wohnlage

Sonstiges

• Kaufpreis: 599.000,00 €

• Bemerkung:

Das Objekt bietet erhebliches Entwicklungspotenzial für Wohnen, Vermietung oder gewerbliche Nutzung. Der Kaufpreis schafft Spielraum für Investitionen und Umnutzung – sei es als Mehrfamilienhaus, gemischt genutztes Objekt oder Gewerbestandort mit Wohnanteil.

• Bei Teilvermietung oder Projektentwicklung sind lukrative Renditen realisierbar.

Gern unterstützen wir bei der Konzeptfindung.

• Großzügiges Grundstück mit zwei Gebäudeteilen
• Mischgebiet mit vielseitiger Nutzungserlaubnis
• Teilsaniertes Hinterhaus bereits nutzbar
• Sanierungsfähiges Vorderhaus mit Ausbaupotenzial
• Öffentliche Erschließung vorhanden (außer Abwasser, derzeit über Sammelgrube mit Bestandsschutz)
• Stabile Heizungsanlage (Viessmann)
• Standortvorteil: zentral auf Rügen gelegen

Neugierig geworden? Dann schnell eine Mail an: info@idea-immobilien.de

Wir freuen uns, Ihnen dieses Objekt persönlich zeigen zu dürfen!

Alle Angaben stammen vom Eigentümer. Für deren Richtigkeit und Vollständigkeit übernehmen wir keine Gewähr. Änderungen, Irrtümer und Zwischenverkauf bleiben vorbehalten.

Immobilie anfragen

Bitte rechnen Sie 5 plus 1.