Solides Mehrgenerationshaus mit 3 Wohnungen, einem Ferienhaus und einem Tiny House zu verkaufen!

Kosten

Kaufpreis:
779.000 €
Käuferprovision:
Provisionsfrei

Merkmale

Badezimmer:
Dusche, Badewanne, Fenster
Küche:
Einbauküche
Boden:
Fliesen, Stein, Dielen
Garage / Stellplatz:
Carport
Möbliert:
Voll möbliertTeil möbliert

Flächen

Wohnfläche:
425,00 m²
Grundstücksfläche:
3.143,00 m²

Objektangaben

Nutzungsart:
Wohnen
Objektart:
Haus
Ort:
18311 Ribnitz-Damgarten
Strasse:
Pappelallee
Zimmer:
13
Terrassen:
2
Etagenanzahl:
3
Baujahr:
1920
Ausstattung:
standard
Heizungsart:
Zentralheizung
Befeuerung:
Öl
Carports:
1

Energieausweis

Ausweistyp:
Verbrauchsausweis
Gültig bis:
03.03.2036
Verbrauchkennwert:
69.30 kWh/(m²*a)
Warmwasser inkl.:
Ja
Energieträger:
Erdöl
Effizienzklasse:
B
Baujahr:
1920
Ausstellungsdatum:
04.03.2026
Gebäudeart:
Wohngebäude

Beschreibung

Dieses außergewöhnliche Anwesen bietet zahlreiche Möglichkeiten für Wohnen, Vermietung oder Feriennutzung. Zum Verkauf steht ein solides Mehrgenerationenhaus in ruhiger Lage bei Ribnitz-Damgarten, das sich ideal für große Familien, Mehrgenerationenwohnen oder auch als Kombination aus Eigennutzung und Vermietung eignet.

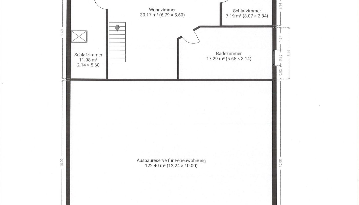
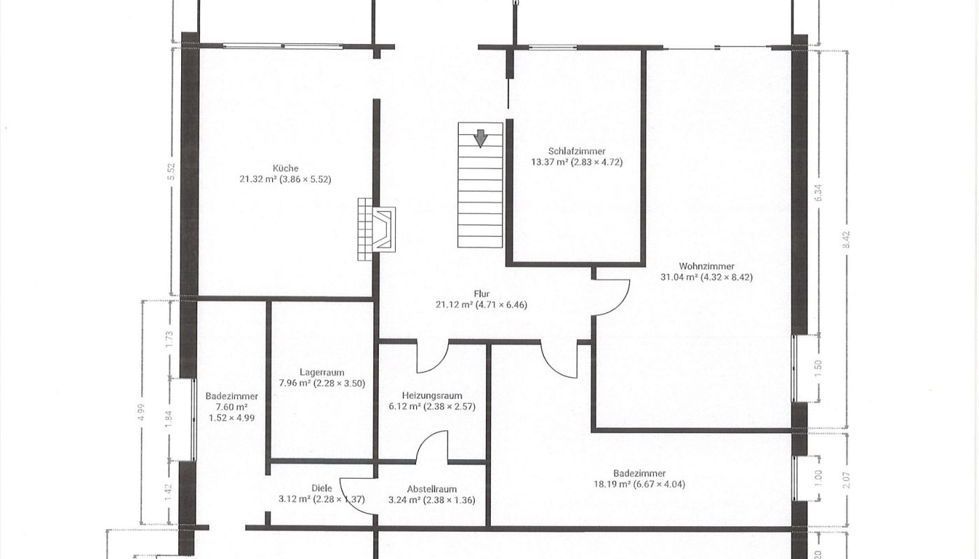
Das Haupthaus verfügt über eine Wohnfläche von ca. 373 m² und bietet derzeit Platz für drei Wohnungen und Ausbaureserve für individuelle Wohnkonzepte. Die selbst genutzte Wohneinheit mit etwa 175 m² befindet sich überwiegend im Erdgeschoss und wurde im Zuge einer umfassenden Sanierung in den Jahren 2015/2016 barrierefrei modernisiert. Durch die großzügige Raumaufteilung und die solide Bauweise entsteht ein angenehmes Wohngefühl mit vielen Nutzungsmöglichkeiten.
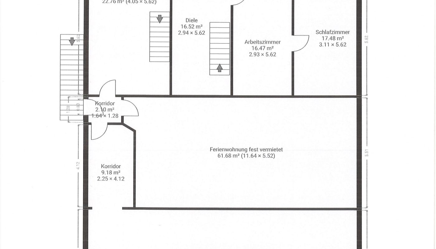
Ein Teilbereich des Hauses mit etwa 50 m² ist bereits fest vermietet und sorgt für laufende Mieteinnahmen. Weitere Einheiten eignen sich ebenfalls zur Vermietung oder als Ferienwohnungen.

Auf dem weitläufigen Grundstück befinden sich zusätzlich ein separates Ferienhaus mit etwa 42 m² Wohnfläche (Kernsaniert 2013) und ist derzeit vermietet sowie ein vor kurzer Zeit aufwendig errichtetes Tiny House. Diese zusätzlichen Gebäude eröffnen weitere Möglichkeiten zur Nutzung, beispielsweise für Gäste, Ferienvermietung oder als separate Wohneinheiten.

Besonders interessant ist die vorhandene Ausbaureserve von etwa 250 bis 300 m², die weiteres Entwicklungspotenzial im Hauptgebäude bietet. Das Grundstück selbst verfügt über mehrere Zufahrten, großzügige Freiflächen und praktische Nebengebäude, darunter ein Carport mit Abstellräumen.

Das Haupthaus wurde in massiver Bauweise mit 36,5 cm starkem Mauerwerk errichtet. Zur Ausstattung gehören unter anderem Parkett- und Holzdielenböden, ein Kamin ca. 9 kW, teilweise Fußbodenheizung in Küche und Bad sowie ein vorhandener Glasfaseranschluss. Teile der Elektrik wurden im Rahmen der Sanierung erneuert.

Das Baujahr des Hauses liegt bei ca.1920, größere Modernisierungsmaßnahmen wurden 2015/2016 durchgeführt, weitere Arbeiten folgten teilweise 2019.
Die Festvermieteten Einheiten erzielen derzeit Mieteinnahmen von rund 1258 € monatlich zuzüglich Nebenkosten.

Dieses Objekt vereint großzügiges Wohnen, zusätzliche Einnahmemöglichkeiten und Entwicklungspotenzial auf einem großen Grundstück. Ob als Mehrgenerationenhaus, Wohnprojekt, Ferienvermietung oder Kapitalanlage – hier eröffnen sich vielfältige Perspektiven für die Zukunft.

Lage

Die Immobilie befindet sich im Ortsteil Neuhof der Bernsteinstadt Ribnitz-Damgarten in Mecklenburg-Vorpommern. Die Umgebung ist geprägt von einer ruhigen, ländlichen Wohnlage mit viel Natur, Wiesen und Feldern. Gleichzeitig ist das Zentrum von Ribnitz-Damgarten mit Einkaufsmöglichkeiten, Schulen, Ärzten, Restaurants und weiteren Einrichtungen des täglichen Bedarfs in wenigen Minuten erreichbar.

Besonders attraktiv ist die Nähe zur beliebten Urlaubsregion Fischland-Darß-Zingst. Die Ostseestrände sowie die Orte Dierhagen, Wustrow und Ahrenshoop sind in etwa 15 bis 25 Minuten mit dem Auto erreichbar. Die Region zählt zu den schönsten Küstenlandschaften Deutschlands und bietet kilometerlange feinsandige Strände, eine einzigartige Boddenlandschaft sowie zahlreiche Freizeit- und Erholungsmöglichkeiten.

Auch für Radfahrer und Naturliebhaber bietet die Umgebung ideale Bedingungen. In der Region verlaufen mehrere gut ausgebaute Radwege, unter anderem der bekannte Ostseeküsten-Radweg, der entlang der Küste führt und mit der Halbinsel Fischland-Darß-Zingst verbunden ist. Zudem gibt es zahlreiche Rad- und Wanderwege rund um den Saaler Bodden und den Ribnitzer See, die zu ausgedehnten Touren durch die Natur einladen.

Sonstiges

Energieausweistyp: Verbrauchsausweis Gebäudetyp: Wohngebäude Baujahr laut Energieausweis: 1920 Wesentliche Energieträger: Erdöl/Holz Gültigkeit: 04.03.2026 bis 04.03.2026 Effizienzklasse: B Endenergieverbrauch: 69,30 kWh/(m²·a) - Warmwasser enthalten

Hinweis:

Widerrufsbelehrung und Datenschutz erhalten Sie auf Anfrage oder mit dem Vertragsangebot.

Immobilie anfragen

Was ist die Summe aus 5 und 3?